Under Offer

Bankton Park East, Murieston, Livingston

welcome to

Bankton Park East, Murieston, Livingston

Property Summary

Discover this superb 2-bedroom home, perfect for first-time buyers. Beautifully presented and situated in a great location, with driveway for convenient parking and stylish living space.
Offers Over £204,000
Under Offer

documentation

  • Book Viewing
  • Floorplan
  • View Brochure
  • View EPC
  • Virtual Tour
  • View Home Report

Property Features

  • Semi-Detached House - Beautifully Presented
  • 2 Bedrooms with Built-in Storage
  • Bright & Airy Lounge
  • Stylish Fitted Kitchen/Diner
  • Driveway for 2 Cars
  • Superb Sunny Enclosed Garden
  • Perfect First-Time Purchase

details

  • Type: Semi-Detached
  • Availability: Under Offer
  • Bedrooms: 2
  • Bathrooms: 1
  • Reception Rooms: 1
  • Parking: Driveway, Single Garage
  • Outside Space: South Facing Garden
  • Council Tax Band: C
  • Tenure: Freehold
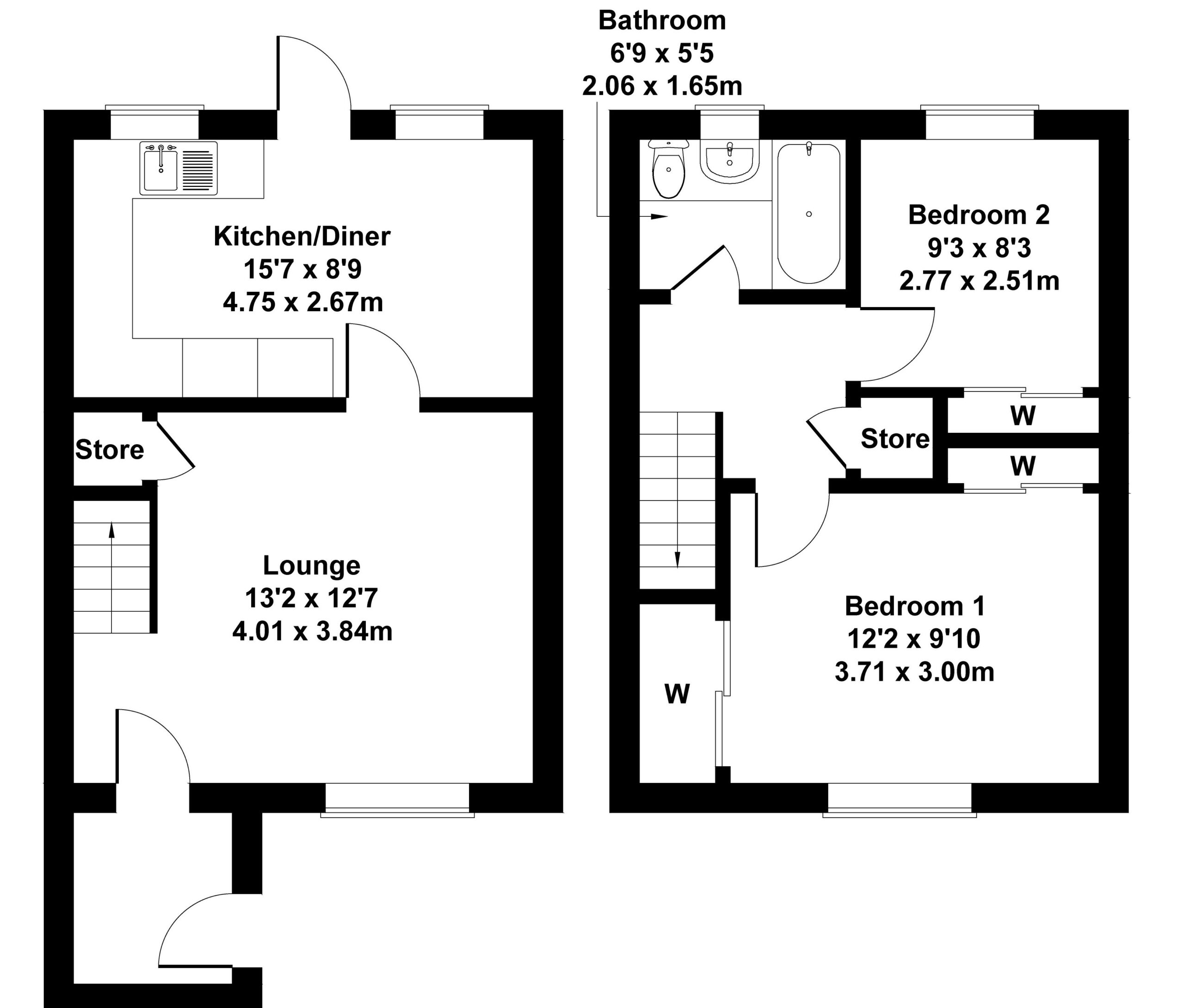
  • Schedule Text: Nestled in the highly desirable location of Murieston, Livingston, 5 Bankton Park East presents an outstanding opportunity for first-time buyers to acquire a beautifully presented two-bedroom semi-detached home that exudes contemporary charm and convenience. The property welcomes you with an attractive exterior featuring a spacious driveway, affirming its kerb appeal. The front door opens into a practical entrance vestibule, providing an ideal spot for storing shoes and coats before you enter the inviting lounge. This room basks in natural light, creating a tranquil space for relaxation, accentuated by tasteful neutral decor and a striking feature wall. A wooden staircase ascends from the lounge to the upper landing. A convenient storage cupboard keeps all your belongings neatly organised. A door opens to the stylish kitchen/diner. The kitchen is the heart of this home, boasting stylish white high gloss units complemented by chic metro tile splashbacks. Integrated appliances, include the fridge/freezer and space for a free-standing washing machine and cooker which ensures a seamless culinary experience. The space is brightened by dual aspect windows and offers room for a dining table, perfect for hosting or intimate dinners. Door opens to the well-presented garden. Upstairs leads the 2 bedrooms and bathroom and an additional store cupboard. The bedrooms are a testament to comfort and style, with the master bedroom offering two generous fitted wardrobes and laminate flooring presented in fresh neutral decor with a feature wall. Bedroom two, equally well-appointed, overlooks the splendid rear garden and also has built-in storage. The bathroom presents a modern white suite with a shower over the bath, framed by warm beige tiles and enhanced by vanity storage. Externally, the sunny south facing rear garden is a fully enclosed sanctuary, ideal for children and pets, complete with a vast lawn and decking areas for outdoor entertainment. A garden store adds to the appeal. With gas heating, double glazing, and attractive oak-effect internal doors, this house is move-in ready. Its proximity to Livingston South train station and motorway links makes it a convenient and enviable choice.
  • Schedule Sizes: Location: Bankton Park East is situated within the incredibly popular residential area of Murieston within the town of Livingston. The area boasts Livingston Cricket Club, Bankton House Hotel, country walks, cycle paths, highly regarded schools at both levels and excellent local amenities. The town is the perfect location for the commuter with excellent links to the M8 motorway to both Glasgow and Edinburgh, and benefits from Livingston South Train Station located within walking distance. The property is also situated within close proximity to Livingston Shopping Centre, where you will find a huge array of supermarkets, high street shops, bars, restaurants and leisure facilities including the Vue Cinema, Livingston Designer Outlet and the Almondvale Retail Park. Extras: Floor coverings, blinds, light fittings and fixtures, cooker, fridge/freezer, garden shed, radiator covers and external lights.

full description

Full Details

Description
Nestled in the highly desirable location of Murieston, Livingston, 5 Bankton Park East presents an outstanding opportunity for first-time buyers to acquire a beautifully presented two-bedroom semi-detached home that exudes contemporary charm and convenience.

The property welcomes you with an attractive exterior featuring a spacious driveway, affirming its kerb appeal. The front door opens into a practical entrance vestibule, providing an ideal spot for storing shoes and coats before you enter the inviting lounge. This room basks in natural light, creating a tranquil space for relaxation, accentuated by tasteful neutral decor and a striking feature wall. A wooden staircase ascends from the lounge to the upper landing. A convenient storage cupboard keeps all your belongings neatly organised. A door opens to the stylish kitchen/diner.

The kitchen is the heart of this home, boasting stylish white high gloss units complemented by chic metro tile splashbacks. Integrated appliances, include the fridge/freezer and space for a free-standing washing machine and cooker which ensures a seamless culinary experience. The space is brightened by dual aspect windows and offers room for a dining table, perfect for hosting or intimate dinners. Door opens to the well-presented garden.

Upstairs leads the 2 bedrooms and bathroom and an additional store cupboard. The bedrooms are a testament to comfort and style, with the master bedroom offering two generous fitted wardrobes and laminate flooring presented in fresh neutral decor with a feature wall. Bedroom two, equally well-appointed, overlooks the splendid rear garden and also has built-in storage.

The bathroom presents a modern white suite with a shower over the bath, framed by warm beige tiles and enhanced by vanity storage.

Externally, the sunny south facing rear garden is a fully enclosed sanctuary, ideal for children and pets, complete with a vast lawn and decking areas for outdoor entertainment. A garden store adds to the appeal.

With gas heating, double glazing, and attractive oak-effect internal doors, this house is move-in ready. Its proximity to Livingston South train station and motorway links makes it a convenient and enviable choice.

Extras: Floor coverings, blinds, light fittings and fixtures, cooker, fridge/freezer, garden shed, radiator covers and external lights.

Hometown Estate Agents Complimentary Home Valuations.
Thinking of selling? Take advantage of our complimentary home valuation service. Our skilled valuation expert Sinead Wood-McManus will assess your property's worth accurately, providing you with valuable insights to inform your decision-making process. Ready to take the next step? Contact Hometown Estate Agents today to schedule your complimentary home valuation and learn more about our comprehensive selling services. Your journey to a successful sale starts here.

Notes: Prospective purchasers are requested to note formal interest with Hometown Estate Agents as soon as possible after viewing in order that they may be informed of any closing date. The sellers reserve the right to sell without imposing a closing date and do not bind themselves to accept the highest, or any, offer. These particulars are believed to be correct, but their accuracy is not guaranteed, and they do not form part of any contract. Dimensions are taken at the widest and longest points and are approximate. Photos may have been taken with a wide angle lense and images may have been subject to digital editing. Moveable items or electrical goods illustrated are not included within the sale unless specifically included in writing. We have not tested the electricity, gas or water services, heating systems or any appliances. No Warranty is implied or given.

Bankton Park East, Murieston, Livingston

don't miss out

register for property alerts

Get ahead of the competition! Sign up for Property Alerts today and receive tailored listings straight to your inbox. Don’t miss out on your dream home – subscribe now and be the first to know about properties matching your search criteria!

property enquiry

Bankton Park East, Murieston, Livingston

Offers Over £204,000

get in touch

Contact Us

Complete the form below and a member of our team will be in touch to discuss your enquiry.


Privacy Overview

This website uses cookies so that we can provide you with the best user experience possible. Cookie information is stored in your browser and performs functions such as recognising you when you return to our website and helping our team to understand which sections of the website you find most interesting and useful.

This website also uses Google Analytics to collect anonymous information such as the number of visitors to the site, and the most popular pages.

By continuing to use this website, you agree to their use.